Как правило, опора моста состоит из нескольких элементов: оголовок – верхняя часть опоры, на которой разметены подферменные площадки, предназначенные для установки и крепления опорных частей. Функциональная задача оголовка – распределение нагрузки от опорных частей на нижележащие элементы опоры. В свайных и стоечных опорах в качестве оголовка используется насадка (ригель); тело опоры – средняя по высоте часть опоры, конструкция которой и определяет ее тип; фундамент – нижняя часть опоры, размещенная или заделанная в грунте основания.
Железобетонные контурные блоки – это специальные защитные конструкции, которые применяются в сборе для защиты тела опор мостов от разрушения температурными перепадами и ледовыми нагрузками. Железобетонные блоки, в сборе представляющие собой массивные опоры, возводятся как на фундаментах мелкого заложения, т.е. на естественном основании, так и на свайных фундаментах, выполненных из свай различных типов.
Высокопрочные контурные блоки необходимы для передачи на грунт вертикальных и горизонтальных нагрузок от веса пролетных строений, верхнего строения пути железнодорожных мостов или проезжен части автодорожных мостов, подвижного состава, ветра и т.д. Концевые блоки и опоры мостов дополнительно воспринимают горизонтальное давление грунта от его собственного веса, и от временной нагрузки, расположенной на призме обрушения.
Железобетонные блоки, образующие в сборе массивные промежуточные опоры, предназначены для применения в однопутных мостах под железную дорогу на прямых участках пути и на кривых радиусом 300 м и более, в умеренных, суровых и особо суровых климатических условиях, на суходолах и постоянно действующих водотоках, в несейсмических районах и в районах с расчетной сейсмичностью 7, 8 и 9 баллов включительно.
Сборные контурные блоки применяются для создания опор под балочные разрезные пролетные строения длиной от 16,5 до 110 м. Однако возможны компоновки контурных блоков для железнодорожных мостов с пролетами более 110 м, для автодорожных, совмещенных и других типов мостов. Различная компоновка типовых контурных блоков позволяет создавать опоры с различным сечением, которые можно использовать как вдоль, так и поперек оси моста.
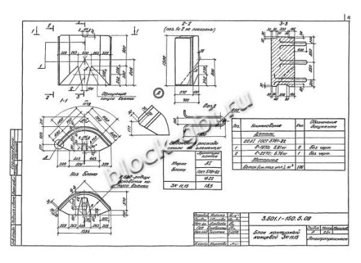
Контурные блоки представляют собой фасонные конструкции, анкеруемые арматурными выпусками. Нижняя поверхность – постель – каждого блока скошена во внешнюю сторону и к поперечной оси, образуя опорную плоскость Т-образного очертания в плане. На верхней постели имеются соответствующие канавки, которыми фиксируется положение блоков верхнего ряда. Горизонтальные стыки между блоками заполняются раствором, вертикальные – бетоном ядра.
Сборные контурные железобетонные блоки монтируются непосредственно в грунт под каждым пролетам мостов, под стоечные и свайные промежуточные или концевые опоры мостов. Блоки укладываются по периметру опоры. Пространство внутри опоры, для придания большей несущей способности, заполняется раствором бетона. Поэтому опоры, образованные из контурных блоков, называются сборно-монолитными.
Железобетонные контурные блоки позволяют собирать тело опоры прямоугольного в плане очертания с закругленными углами, с шагом размеров вдоль оси моста 0,3 м, поперек – 0,6 м, а также обтекаемой формы в плане – с углом заострения 90° и радиусом закругления 0,75 м, с шагом размеров вдоль оси моста 0,4 м, поперек – 0,3 – 0,9 м.
Очертание опоры в плане принимается: обтекаемой формы – на водотоках в пределах переменного уровня воды, при наличии ледохода, корчехода, при значительных скоростях течения (в целях уменьшения глубины местного размыва); необтекаемой прямоугольной формы – на суходолах, на водотоке выше уровня высокой воды, а в пределах переменного уровня воды – при малых скоростях течения и при отсутствии местного размыва.
Блоки контурные массивных опор делятся на три типа:
- Прямые блоки контурные;
- Переходные блоки контурные;
- Концевые блоки контурные.
Опоры собираются из блоков трех типов, при этом размеры блоков по лицевой поверхности изменяются, образуя всего 8 основных типоразмеров блоков. Высота основных блоков принята 1,5 м, толщина 0,7 – 1 м. Кроме того, предусмотрена модификация блоков с увеличенной высотой – 2,5 м.
Железобетонные контурные блоки изготавливаются в соответствии с серией 3.501.1-150 «Опоры унифицированные железнодорожных мостов с применением изделий заводского изготовления» из тяжелого бетона, классами прочности п
о прочности на сжатие В20, В35 и В45. Марка бетона по морозостойкости – от F100 до F500 – назначается в зависимости от средней температуры воздуха и места строительства. Марка бетона по водонепроницаемости – W6 – W8.
Контурные железобетонные блоки армируются сталью класса А-I по ГОСТ 5781-82, которая применяется как для анкерных, так и для строповочных петель. Для армирования монолитных элементов сборно-монолитных опор используется арматурная сталь классов А-II и Ас-II.
Железобетонные контурные блоки маркируются буквенно-числовыми значениями, содержащими следующие сведения: тип блока (1К – рядовой, 2К – переходной, 3К – концевой) и его габаритные размеры, длина (размер блока по фасаду) и высота, указанные в дециметрах. Дополнительно, в марку вводится дополнительный индекс, отражающий требования к материалу (бетону) блока.
Смотрите также:
| Варианты написания товара |
|---|
| Блок контурный концевой 3К11.15 |
| Блок контурный концевой 3К 11.15 |
| Блок контурный 3К11.15 концевой |
| Блок контурный 3К 11.15 концевой |
| 3К11.15 блок контурный концевой |
| 3К 11.15 блок контурный концевой |
| 3К11.15 блок контурный |
| 3К 11.15 блок контурный |
| Блок 3К11.15 контурный концевой |
| Блок 3К 11.15 контурный концевой |
| Блок контурный 3К11 15 концевой |
| Блок контурный 3К11-15 концевой |
| 3К11.15 контурный блок концевой |
| 3К11-15 блок контурный концевой |
| 3К 11.15 контурный блок концевой |
| 3К 11-15 блок контурный концевой |
| Блок контурный концевой 3К11-15 |
| Блок контурный концевой 3К11 15 |
| 3К 11 15 блок контурный концевой |
| Блок контурный 3К11.15 (концевой) |
| 3К11.15 (блок контурный концевой) |
| Блок 3К11-15 контурный концевой |
| Блок 3К11.15 контурный |
| 3К11.15 контурный блок |
|
Наименование для документов
|
контурный концевой блок |
|
ГОСТ/Серия
|
Серия 3.501.1-150 |
|
Длина, мм
|
1584 |
|
Ширина, мм
|
700 |
|
Высота, мм
|
1500 |
|
Масса, тонн
|
2.5 |
|
Объем бетона, куб.м
|
01.06 |
|
Класс бетона
|
В20 |
|
Сталь, кг
|
18.5 |
|
Закладная 1
|
Строповочная петля |
|
Закладная 2
|
Строповочная петля |
Как купить
Процесс покупки железобетонных изделий у нас прост и удобен. Следуйте этим шагам:
- Выбор продукции: Ознакомьтесь с нашим ассортиментом и выберите необходимые железобетонные изделия.
- Консультация: Свяжитесь с нашим менеджером для получения консультации по выбору продукции и уточнения всех деталей. Вы можете позвонить нам или написать на электронную почту.
- Оформление заказа: После согласования всех деталей оформите заказ. Менеджер поможет вам заполнить все необходимые документы.
- Согласование доставки: После оформления заказа наш менеджер свяжется с вами для согласования условий и сроков доставки.
- Оплата: Выберите удобный способ оплаты. Мы предлагаем несколько вариантов, включая безналичный расчет.
- Получение товара: После выполнения всех условий заказа, вы получите железобетонные изделия в назначенное время и по согласованному адресу. При получении подпишите акт приема-передачи.
Если у вас возникли вопросы на любом этапе покупки, не стесняйтесь обращаться к нашим менеджерам!
Оплата
Мы принимаем только безналичные платежи и работаем исключительно с юридическими лицами. Пожалуйста, ознакомьтесь с условиями оплаты ниже:
- Способ оплаты: Все расчеты производятся безналичным путем. Мы не принимаем наличные.
- Счет на оплату: После оформления заказа вам будет выставлен счет, который необходимо оплатить в срок, указанный в документе.
- Реквизиты: Все необходимые банковские реквизиты будут предоставлены в счете. Убедитесь, что все данные указаны правильно для успешного перевода.
- Подтверждение оплаты: После осуществления платежа отправьте нам подтверждение, чтобы мы могли оперативно обработать ваш заказ.
- Получение документов: После полной оплаты вы получите все необходимые документы, включая акт выполненных работ, товарные накладные и сертификаты на продукцию.
Мы работаем с НДС и предоставляем все необходимые сертификаты и документы. Все гарантии будут прописаны в договоре, что обеспечивает прозрачность и надежность сотрудничества.
Если у вас есть вопросы по поводу процесса оплаты, не стесняйтесь обращаться к нашим менеджерам за помощью!
Наша оперативность — ваше удобство. Мы гарантируем своевременную доставку железобетонных изделий, что является ключевым фактором для успешной реализации ваших строительных проектов. Доставка осуществляется прямо к вашему объекту с учетом всех стандартов качества.
Основные условия доставки:
• Выбор тарифа: Вы можете выбрать способ расчета стоимости доставки — почасовой или по зонам.
• Согласование: Менеджер свяжется с вами для уточнения деталей после оформления заказа.
• Время на погрузку: Комплектация товара занимает от 1 до 3 дней в зависимости от объема.
• Акт приема-передачи: Продукция передается по акту приема-передачи.
Тарифы на доставку:
Цены варьируются в зависимости от расстояния и региона. Все тарифы включают НДС. При неблагоприятных погодных условиях возможны небольшие изменения в стоимости.
География доставки:
Мы работаем по всей территории РФ и имеем 12 офисов и производств, чтобы обеспечить удобные условия для доставки.
Для точного расчета стоимости доставки обращайтесь к нашим менеджерам!

